Fachwerkhaus mit neuer Heizung: Familienfreundliches Ein-/ oder Zweifamilienhaus in Dortmund-Oespel




















Objektart
Haus
Objekttyp
Einfamilienhaus
Vermarktungsart
Kauf
PLZ
44149
Ort
Dortmund / Oespel
ImmoNr
A0159
Wohnfläche
ca. 222 m²
Grundstücksgröße
ca. 475 m²
Nutzfläche
ca. 55 m²
Anzahl Zimmer
8
Anzahl Badezimmer
2
Kaufpreis
598.000,00 €
Baujahr
1900
Endenergiebedarf
108,42 kWh/(m²a)
Energieausweis
Bedarfsausweis
Energieausweis gültig bis
04.12.2035
Energieeffizienzklasse
D
Außen-Provision
2,38 % Käuferprovision inkl. 19 % MwSt..
wesentlicher Energieträger
Gas
Beschreibung
Liebevoll, zentral und familienfreundlich – ein einzigartiges Einfamilienhaus mit historischem Charme.Dieses besondere Einfamilienhaus wurde ca. im Jahr 1900 erbaut und begeistert bereits von außen mit seinem charaktervollen Fachwerk und vermittelt durch seine individuelle Gestaltung das Gefühl, jeden Tag in seinem eigenen Ferienhaus zu wohnen. Charakter, Geschichte und ein unverwechselbares Ambiente machen diese Immobilie zu etwas ganz Besonderem.
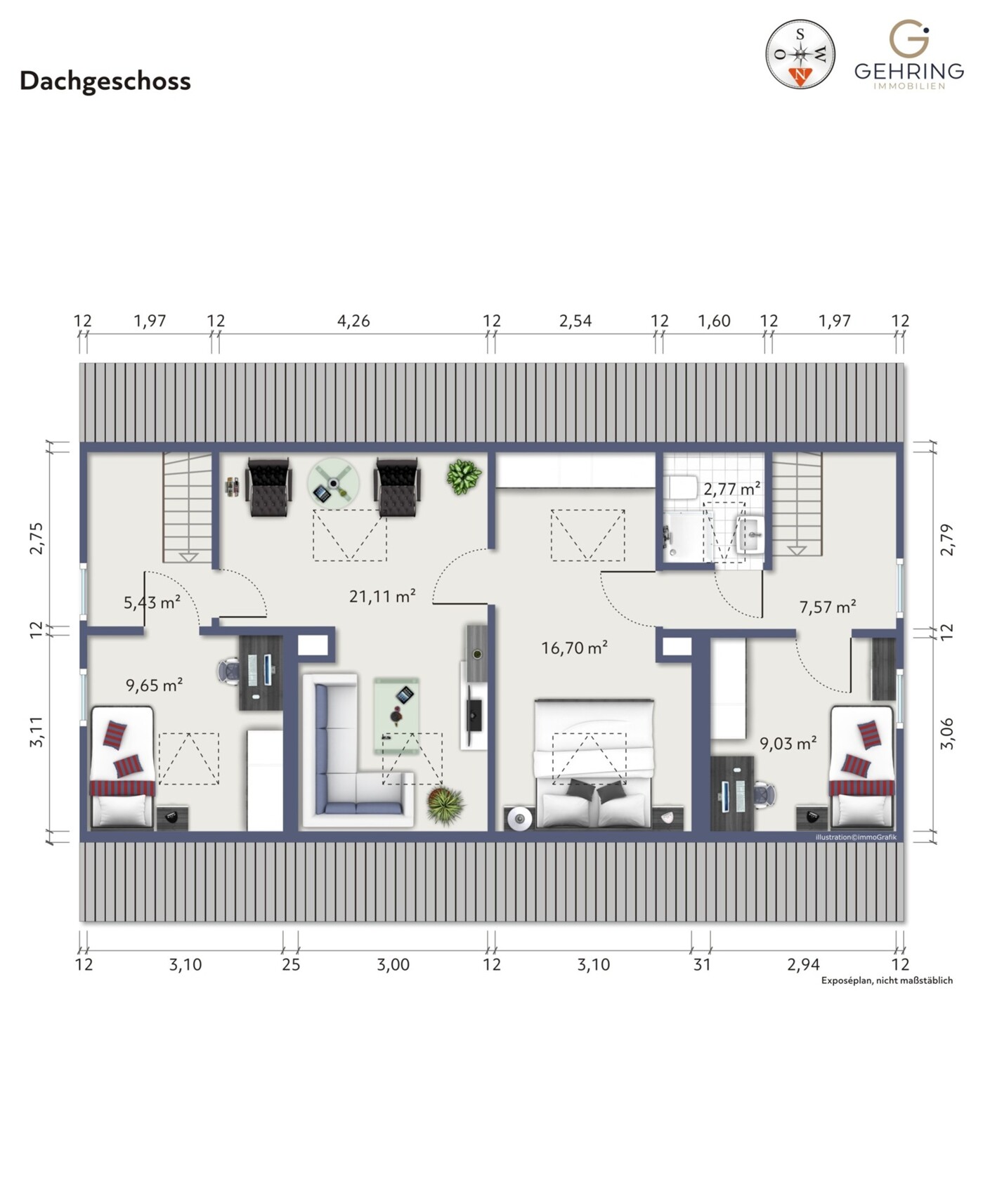
Auf rund 222,00 m² Wohnfläche, davon ca. 143 m² im Erdgeschoss, verteilen sich insgesamt sechs potenzielle Schlafzimmer, ein Hobbyraum, ein großes Wohn-/Esszimmer, zwei Badezimmer und eine Küche.
Die durchdachte Raumaufteilung eignet sich ideal für Familien – ob mit Kindern, als Mehrgenerationenhaus oder zur Kombination von Wohnen und Arbeiten mit einem separaten Bürobereich. Sowohl der Innen- als auch der Außenbereich bieten vielfältige Möglichkeiten zur individuellen Gestaltung, Renovierung oder Modernisierung – ganz nach Ihren eigenen Vorstellungen.
Viele wichtige Modernisierungen wurden bereits durchgeführt: darunter ein Großteil der Fenster (ca. 2014), die wärmegedämmte Westfassade samt neuer Hauseingangstür (ca. 2014), die Sanierung der Gefache bzw. Fachwerkkonstruktion (ca. 1996 und 2014), Erneuerungen der Elektrik (1992 und 1996) sowie eine neue Gastherme, die im Dezember 2025 installiert wird.
Das Herzstück der Immobilie bildet das großzügige Wohn- und Esszimmer mit direktem Zugang zum nach Süden ausgerichteten Garten. Die ca. 22 m² große Terrasse lädt zum Verweilen in der Sonne ein. Nachträglich eingebaute Fenster sorgen für ein angenehmes Lichtspiel und verleihen dem Wohnzimmer eine helle, freundliche Atmosphäre. Die Terrasse bietet Potenzial: Sie lässt sich ideal überdachen oder in einen Wintergarten verwandeln – für noch mehr Platz und Wohnkomfort.
Diese Immobilie vereint Wohnen mit individueller Gestaltung, Geschichte und Platz für Familienbedürfnisse – ein Zuhause das lebt und eine Seele hat.
Lage
Dortmund-OespelZentral, naturnah und familienfreundlich – wohnen mit perfekter Anbindung.
Die Immobilie liegt in unmittelbarer Nähe zum Naturschutzgebiet Dorneywald und bietet damit eine grüne Umgebung mit hohem Freizeitwert – ideal für Spaziergänge, Joggingrunden oder Ausflüge mit der Familie.
Trotz der naturnahen Lage profitieren Sie von einer hervorragenden Infrastruktur: Einkaufsmöglichkeiten wie IKEA, Kaufland, Aldi, Metro, Rewe, Edeka, dm und viele weitere sind in nur 3 bis 7 Autominuten bequem erreichbar.
Für Pendler und Studierende ist die Anbindung besonders attraktiv: Die S-Bahn-Haltestelle Dortmund-Oespel (Linie S1) erreichen Sie in ca. 15 Minuten zu Fuß. Von dort bestehen Direktverbindungen nach Dortmund, Essen und Düsseldorf Hbf. Die Technische Universität Dortmund ist nur etwa 5 Minuten mit dem Auto entfernt, die Universität Witten/Herdecke in rund 10 Minuten.
Auch Freizeit und Erholung kommen nicht zu kurz: Der beliebte Rombergpark ist in ca. 10 Autominuten erreichbar. Die Dortmunder Innenstadt erreichen Sie in etwa 15 Minuten mit dem Auto – alternativ auch ganz entspannt mit dem Fahrrad über nahegelegene Radwege. Das große Einkaufszentrum "Ruhrpark" ist ebenfalls in kurzer Zeit mit dem Auto erreichbar.
Eine Grundschule sowie ein evangelischer und ein katholischer Kindergarten sind fußläufig erreichbar. Weiterführende Schulen sind durch ein gut ausgebautes Netz an Bus- und Bahnverbindungen bequem zu erreichen.
Die Anbindung an das überregionale Straßennetz ist ebenfalls optimal: Die A45 erreichen Sie in weniger als 4 Minuten, von dort haben Sie einen schnellen Anschluss zu den Autobahnen A40, A448 und A43 – ideal für Berufspendler.
Die nächste Bushaltestelle liegt nur ca. 250 Meter entfernt und wird von der Linie 371 angefahren. Diese bringt Sie direkt zur Universität Dortmund oder zum Hauptbahnhof Witten.
Die Lage ist ein idealer Ort für Familien, Berufstätige und alle, die entspannt wohnen und dennoch bestens angebunden sein möchten.
Ausstattung
- Baujahr: ca. 1900 - in 1996 sowie 2014 umfassend saniert- Neue Gas-Zentralheizung, welche noch in diesem Jahr installiert wird
- Überwiegend hochwertige Holz/Alu-Fenster (innen Echtholz, außen Alu) mit 3-fach-Verglasung und Sonnenschutz von Gaulhofer
- Wärmedämmung der Westfassade, Erneuerung der darunter liegenden Fachwerk-Konstruktion in 2014
- Sichtbares Fachwerk im Außen- und Innenbereich geben das Gefühl, dauerhaft in einem Ferienhaus zu leben
- Zwei Hauseingänge - Einbau einer Wärme– und Sicherheits-Haustür (Gaulhofer) mit Einbruchschutz in 2014 (rechts); Erneuerung der linken Haustür in 1996
- Die Elektrik wurde im rechten Teil des Gebäudes 1992 vollständig erneuert, im linken Teil 1996
- ca. 222 m² Wohnfläche - davon ca. 143 m² im Erdgeschoss; zzgl. 22 m² Terrasse
- Grundstücksgröße: ca. 475 m²
- Sechs mögliche Schlafzimmer auf zwei Etagen
- Zwei Tageslichtbäder, eines mit Dusche und eines mit Badewanne
- Zwei mögliche Kaminanschlüsse
- Großer Garten mit einem großen Ahornbaum (Naturdenkmal), der ein gutes Mikro-Klima im Gartenbereich und in den Räumen schafft; Ausrichtung: Süden
- Obstbäume und Beerensträucher (u.a. Kirsche, Apfel, Pflaume, Weintrauben etc.)
- Die Überdachung der großen Terrasse (unter dem Baum) – kann als Lager für Kaminholz genutzt werden
- Drei im Garten eingelassene Wasseranschlüsse
- ca. 22 m² große Terrasse
- Gas-Zentralheizung von 2008 (Junkers): Die Gastherme zum Heizen und zur Gewinnung von Warmwasser kann auf Wunsch noch von den Eigentümern erneuert werden. Dazu liegt ein dezidiertes Angebot vor.
- Bodenbeläge: Fliesen, Laminat, Teppich und Echtholzparkett
- Teilweise unterkellert (ca. 55,33 m² Nutzfläche)
- Ein PKW-Stellplatz - weitere an der Straße vor dem Haus
- Derzeitige Verbrauchsangaben der Verkäufer: Gas - ca. 205 €/Monat; Strom - ca. 68 €/Monat; Wasser - ca. 38 €/Monat.
- Internetgeschwindigkeit: Bis zu 250 Mbits/s
Sonstige Angaben
KÄUFERPROVISIONBei Abschluss des Kaufvertrages erheben wir eine Käuferprovision in Höhe von 2,38% inkl. 19% MwSt. (2% zzgl. 19% MwSt.) vom notariell beurkundeten Kaufpreis. Die Provision ist fällig und zahlbar mit Abschluss des Kaufvertrages.
Die gesetzlichen Vorschriften zur Verteilung der Makler-Provision sehen bei der Vermittlung von Einfamilienhäusern und Eigentumswohnungen vor, dass sich Verkäufer und Käufer gegenüber dem Makler, Dennis Gehring Immobilien, Inhaber Dennis Gehring, zur Zahlung der Provision in gleicher Höhe verpflichten. (Vgl. §656c BGB). Der Makler, Dennis Gehring Immobilien, ist auch für die andere Vertragspartei Provisionspflichtig tätig.
Die von Dennis Gehring Immobilien (Inhaber Dennis Gehring) gemachten Angaben bezüglich der Immobilie beruhen auf den ihr erteilten Informationen durch Dritte, namentlich durch den Verkäufer. Eine Haftung für die Richtigkeit oder Vollständigkeit der Angaben kann durch Gehring Immobilien daher nicht übernommen werden. Ebenso kann nicht ausgeschlossen werden, dass das angebotene Objekt nicht bzw. anderweitig verkauft wird. Im Übrigen haftet die Gehring Immobilien nur bei Vorsatz und grober Fahrlässigkeit. Etwaige Schadenersatzansprüche verjähren innerhalb von drei Jahren von dem Zeitpunkt an, an dem der Anspruch entstanden ist, spätestens nach drei Jahren ab Beendigung des Auftrags.
GE L D W Ä S C H E G E S E T Z
Als Immobilienmakler sind wir nach § 2 Abs. 1 Nr. 14 und § 11 Abs. 1, 2 Geldwäschegesetz (GwG) dazu verpflichtet, bei der Begründung einer Geschäftsbeziehung die Identität des Vertragspartners festzustellen und zu überprüfen. Vielen Dank für ihr Verständnis.
D A T E N S C H U T Z E R K L Ä R U N G ( D S G V O ) :
Die Daten werden im Sinne der Datenschutzgrundverordnung verarbeitet. Unsere
Datenschutzerklärung finden Sie auch unter:
https://www.gehring-immobilien.com/datenschutz/
I M P R E S S U M
https://www.gehring-immobilien.com/impressum/
Ansprechpartner
Herr Dennis Gehring
Kranenbergstr. 83
58452 Witten
Telefon1
+49 15906102474
Email
gehring@anfragengehring.com
Seiten: 1