Witten-Rüdinghausen - Grenze Dortmund: Doppelhaushälfte mit großem Grundstück






































Objektart
Haus
Objekttyp
Doppelhaushälfte
Vermarktungsart
Kauf
PLZ
58454
Ort
Witten / Rüdinghausen
ImmoNr
A0136
Wohnfläche
ca. 110 m²
Grundstücksgröße
ca. 638 m²
Nutzfläche
ca. 81 m²
Anzahl Zimmer
4
Anzahl Badezimmer
1
Kaufpreis
325.000,00 €
Baujahr
1929
Endenergiebedarf
161,86 kWh/(m²a)
Energieausweis
Bedarfsausweis
Energieausweis gültig bis
14.12.2035
Energieeffizienzklasse
F
Außen-Provision
3,57 % Käuferprovision inkl. 19 % MwSt..
wesentlicher Energieträger
Gas
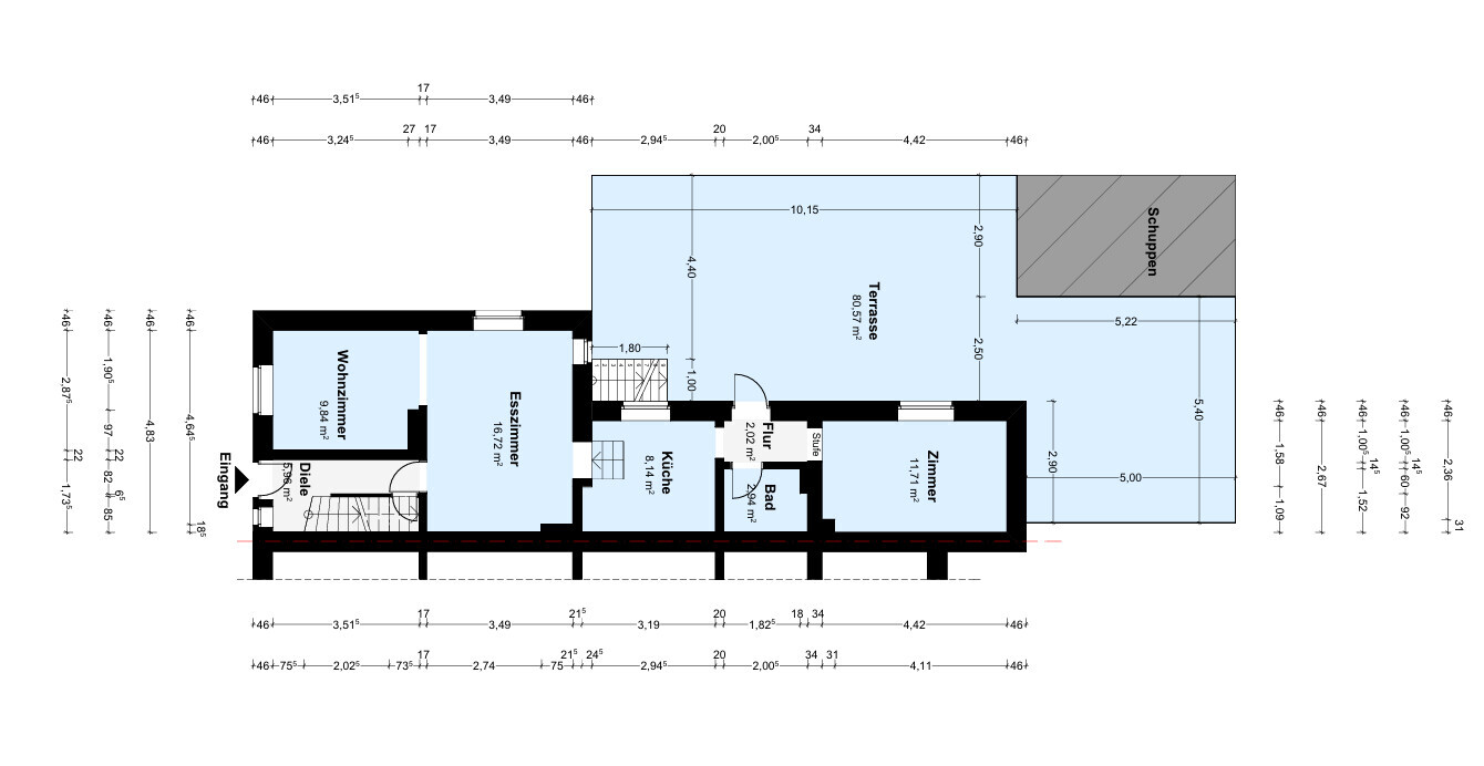
Beschreibung
Sind Sie auf der Suche nach einer charmanten Doppelhaushälfte mit großem Grundstück in Witten-Rüdinghausen? Dann freuen wir uns, Ihnen unser neues Angebot präsentieren zu dürfen. Das Haus eignet sich ideal für eine dreiköpfige Familie.Insgesamt verteilen sich 190,64 m² Wohn- und Nutzfläche, davon entfallen ca. 109,93 m² auf die reine Wohnfläche. Die Nutzfläche von ca. 80,71 m² umfasst den Keller sowie die Spitzböden.
Die Immobilie (Baujahr ca. 1929) verfügt über zwei Eingänge: Den Haupteingang von der Straßenseite sowie einen weiteren seitlichen Zugang über den Anbau. Vom Haupteingang gelangen Sie in das gemütliche Wohn- und Esszimmer, das zu gemeinsamen Stunden im Familienkreis einlädt. Über wenige Stufen erreichen Sie den Anbau, in dem sich die Küche, ein Badezimmer sowie ein weiteres Zimmer befinden, welches Wahlweise als Hobbyzimmer oder Büro genutzt werden könnte. Die vorhandene Einbauküche ist wenige Jahre alt und bleibt im Haus.
Das tagesbelichtete Badezimmer ist mit einer Dusche, einem WC und Waschbecken ausgestattet, die Warmwasseraufbereitung erfolgt über die Therme.
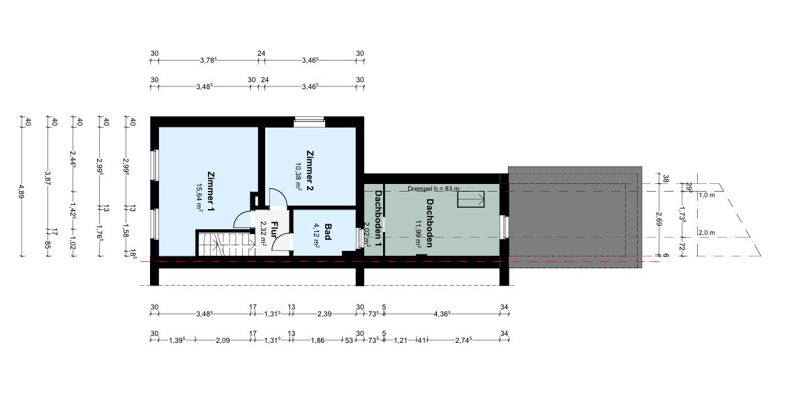
Im Obergeschoss befinden sich zwei Schlafzimmer sowie ein separates WC mit Waschbecken und Tageslicht sowie der Zugang zum zweiten Dachboden.
Das ca. 638 m² große Grundstück bietet viel Gestaltungspotenzial. Derzeit findet man dort einen Unterstand, der als Carport genutzt werden kann, eine durch Weintrauben überdachte Terrasse mit Geräteschuppen, ein Gartenhaus, einen Teich und verschiedene Bereiche zum Erkunden. Die Terrasse liegt seitlich am Haus und kann sowohl als Sitzfläche als auch als Stellplatz für Fahrzeuge genutzt werden.
Die Kunststofffenster sind Doppelverglast und stammen aus den 90ern.
Beheizt wird das Haus aktuell über eine Gas-Zentralheizung aus dem Jahr 1992.
Das Objekt ist insgesamt gepflegt, erfordert jedoch Modernisierungsmaßnahmen zur Anpassung an den heutigen Standard.
Für weitere Informationen füllen Sie bitte das Kontaktformular vollständig aus.
Lage
Witten-Rüdinghausen ist ein attraktiver Stadtteil von Witten und grenzt direkt an Dortmund. Mit gut 98.000 Einwohnern bietet Witten eine ideale Mischung aus einer gut ausgebauten Infrastruktur und einer naturnahen Umgebung – perfekt für Familien, die die Nähe zu Einkaufsmöglichkeiten und Freizeitangeboten schätzen.Die charmante Doppelhaushälfte befindet sich in einer 30er-Zone mit hervorragender Anbindung. Die Bahnhaltestelle Kruckel ist in nur zwölft Minuten zu Fuß erreichbar, alternativ liegt der Bahnhof Witten-Annen-Nord lediglich fünf Fahrminuten entfernt. Die Wittener Innenstadt sowie der Hauptbahnhof sind in ca. 15 Minuten erreicht.
Besonders hervorzuheben ist die naturnahe Umgebung, die zahlreiche Freizeitmöglichkeiten für Familien bietet. Der Dortmunder Rombergpark mit seinem Zoo ist in nur 15 Minuten erreichbar und ein schönes Ausflugsziel für Groß und Klein. Eine ebenso schöne Alternative in Witten ist der Hohenstein mit seinem Wildgehege und Streichelzoo, der ebenfalls nur 15 Minuten entfernt liegt.
Umgeben von weitläufigen Grüngürteln lädt die Region zu ausgedehnten Spaziergängen und Wanderungen ein. Die beliebte Fahrradtrasse „Rheinischer Esel“ ist in unter zehn Minuten zu Fuß erreichbar und bietet eine ideale Ausgangslage für Radtouren durch das Ruhrgebiet.
Familien profitieren von einer gut ausgebauten Bildungsinfrastruktur. Zwei Grundschulen sind in 6-12 Minuten fußläufig erreichbar, während weiterführende Schulen und das Berufskolleg bequem mit dem Auto oder Bus zu erreichen sind. Für den täglichen Einkauf stehen ein Rewe-Markt sowie Netto und Aldi in unmittelbarer Nähe (850-900 Meter) zur Verfügung. Die Autobahnen A448 und A45 sind in unter 5 Minuten zu erreichen und ermöglichen eine schnelle Verbindung nach Dortmund, Bochum und darüber hinaus.
Witten-Rüdinghausen vereint somit die Vorteile einer familienfreundlichen Wohnlage mit einer guten Infrastruktur und einer naturnahen Umgebung – ein idealer Wohnort für Familien.
Ausstattung
- Wohn-/Nutzfläche: ca. 190,64 m²- Doppelverglaste Kunstsoff-Sprossen-Fenster aus 1994 und 1997
- Terrasse und Garten
- Großes Grundstück (638 m²) mit viel Sonne im hinteren Teil des Grundstücks
- Zwei Schlafzimmer
- Separates Arbeitszimmer
- Badezimmer im EG mit Dusche
- Separates WC im OG (Angebot zur Modernisierung in ein vollwertiges Badezimmer liegt vor)
- Zwei Dachböden mit viel Gestaltungs- und Nutzungsmöglichkeiten (Nutzfläche: ca. 14,01 m² und 36,75 m²)
- Einbauküche; wenige Jahre alt
- Teilweise unterkellert; mit separatem Kellerausgang (3-Kellerräume)
- Waschmaschinenstellplatz im Kellergeschoss
- Glasfaseranschluss liegt bereits im Haus
- Gas-Zentralheizung von 1992
- Überwiegend Außenrollläden; manuell und elektrisch
Die als "Visualisierung" gekennzeichneten Fotos dienen ausschließlich der Veranschaulichung und sollen als Inspiration für die mögliche Gestaltung der Räume verstanden werden. Alle anderen Fotos zeigen den aktuellen Zustand der Immobilie.
Die Verkäuferin zeigt sich hier äußerst entgegenkommend und hat den ursprünglichen Angebotspreis von 349.000 € auf 325.000 € angepasst, um Sanierungskosten, z.B. für eine neue Heizung, bereits zu berücksichtigen.
Ein Angebot für die Erneuerung der Elektrik, die Modernisierung des Badezimmers im Obergeschoss, die Lackierung aller Zimmertüren sowie die Renovierung von Wand- und Bodenbelägen liegt vor und kann bei Bedarf gerne eingesehen werden. Gerne vermitteln wir auch den Kontakt zu unseren Handwerkern aus unserem Netzwerk.
Angaben zum Energieausweis:
Bedarfsausweis, Energieklasse F, Endenergiebedarf 161,86 kWh/(m²*a), Baujahr laut Energieausweis 1929, wesentlicher Energieträger Gas, Baujahr der Gas-Zentralheizung: 1992
Sonstige Angaben
KÄUFERPROVISIONBei Abschluss des Kaufvertrages erheben wir eine Käuferprovision in Höhe von 3,57% inkl. 19% MwSt. (3% zzgl. 19% MwSt.) vom notariell beurkundeten Kaufpreis. Die Provision ist fällig und zahlbar mit Abschluss des Kaufvertrages.
Die gesetzlichen Vorschriften zur Verteilung der Makler-Provision sehen bei der Vermittlung von Einfamilienhäusern und Eigentumswohnungen vor, dass sich Verkäufer und Käufer gegenüber dem Makler, Dennis Gehring Immobilien, Inhaber Dennis Gehring, zur Zahlung der Provision in gleicher Höhe verpflichten. (Vgl. §656c BGB). Der Makler, Dennis Gehring Immobilien, ist auch für die andere Vertragspartei Provisionspflichtig tätig.
Die von Dennis Gehring Immobilien (Inhaber Dennis Gehring) gemachten Angaben bezüglich der Immobilie beruhen auf den ihr erteilten Informationen durch Dritte, namentlich durch den Verkäufer. Eine Haftung für die Richtigkeit oder Vollständigkeit der Angaben kann durch Gehring Immobilien daher nicht übernommen werden. Ebenso kann nicht ausgeschlossen werden, dass das angebotene Objekt nicht bzw. anderweitig verkauft wird. Im Übrigen haftet die Gehring Immobilien nur bei Vorsatz und grober Fahrlässigkeit. Etwaige Schadenersatzansprüche verjähren innerhalb von drei Jahren von dem Zeitpunkt an, an dem der Anspruch entstanden ist, spätestens nach drei Jahren ab Beendigung des Auftrags.
GE L D W Ä S C H E G E S E T Z
Als Immobilienmakler sind wir nach § 2 Abs. 1 Nr. 14 und § 11 Abs. 1, 2 Geldwäschegesetz (GwG) dazu verpflichtet, bei der Begründung einer Geschäftsbeziehung die Identität des Vertragspartners festzustellen und zu überprüfen. Vielen Dank für ihr Verständnis.
D A T E N S C H U T Z E R K L Ä R U N G ( D S G V O ) :
Die Daten werden im Sinne der Datenschutzgrundverordnung verarbeitet. Unsere
Datenschutzerklärung finden Sie auch unter:
https://www.gehring-immobilien.com/datenschutz/
I M P R E S S U M
https://www.gehring-immobilien.com/impressum/
Ansprechpartner
Frau Victoria Niedersteberg
Kranenbergstraße 83
58452 Witten / Bommern
Telefon1
0155 62 87 31 28
Email
anfragen@anfragengehring.com
Seiten: 1